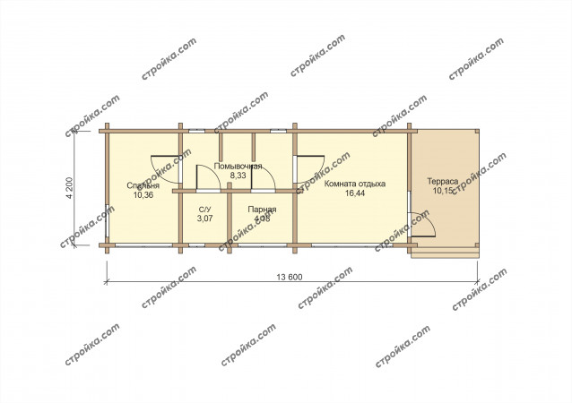
Стройка.com - Проект дома из бруса Д-ПБ-52.53, площадь 52.53 м2, 13.60 на 4.20
Стоимость выбранной комплектации: 844541.86

Проект Д-ПБ-52.53m2
13.60m x 4.20m

Стоимость строительства:

Цена включает все материалы на строительство и стоимость работ.
×